梁与柱的连接
2023-03-20 09:49 陕西钢结构 华邦建设
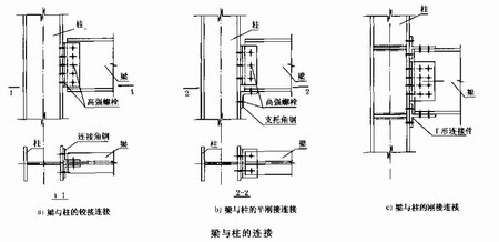
梁与柱的连接一般采用柱贯通型的连接形式,按梁对柱的约束刚度可以分为三类:即铰接连接、刚性连接和半刚性连接。为简化计算,特别是简化对整个结构体系的设计计算,通常假定梁与柱的连接节点为完全刚性和完全铰接两种。
设计梁与柱的刚性连接节点时,需要满足以下要求:
1、梁翼缘和腹板与柱的连接,在梁端弯矩和剪力的共同作用下,需要具有足够的承载力。
2、梁翼缘的内力以集中力作用于柱的部分,不能产生局部破坏,因此需要根据情况设置水平加劲肋(对H形截面柱)或水平加劲板(对箱形或圆管形截面柱)。
3、连接节点板域,即由节点处柱翼缘板和水平加劲肋或水平加劲板所包围的柱腹板区域,在节点弯矩和剪力的共同作用下,需要具有足够的承载力和变形能力。
4、按抗震设计的结构或按塑性设计的结构,采用焊缝或高强螺栓连接的梁柱连接节点,需要保证梁或柱的端部在形成塑性铰时有充分的转动能力。
梁柱刚性连接的计算方法有常用计算法和精确计算法两种。
1、常用计算法考虑梁端内力向柱传递时,在原则上,梁端弯矩全部由梁翼缘承担,梁端剪力全部由梁腹板承担;同时梁腹板与柱的连接,除了梁端剪力要进行计算外,还需要以腹板净截面面积的抗剪承裁力设计值的1/2或梁的左右两端作用弯矩的和除以梁净跨长度所得到的剪力来验算。
2、精确计算法是以梁翼缘和腹板各自的截面惯性矩分担作用于梁端的弯矩M,梁翼缘仅承担弯矩Mf,而腹板同时承担弯矩Mw和梁端全部剪力V来进行连接设计的。
陕西钢结构热线:029-86252006
华邦建设网址:www.unpi.cn
联系地址:陕西省西安市北关正街35号方兴大厦8楼
